Trilocale in vendita

Castel Sant'Elia, Via crescente munstermann
€ 105.000
3 locali 3 locali
120 Mq 120 Mq
1 bagno 1 bagno

Trilocale in vendita

Castel Sant'Elia, Via crescente munstermann

Descrizione annuncio

Ampio appartamento ristrutturato con Superbonus 110

Proponiamo in vendita un luminoso appartamento inserito in un palazzo recentemente ristrutturato grazie al Superbonus 110, che ha consentito interventi di efficientamento energetico di ultima generazione: pannelli fotovoltaici con batterie di accumulo, pompa di calore, nuovi infissi, cappotto termico e coibentazione del tetto.

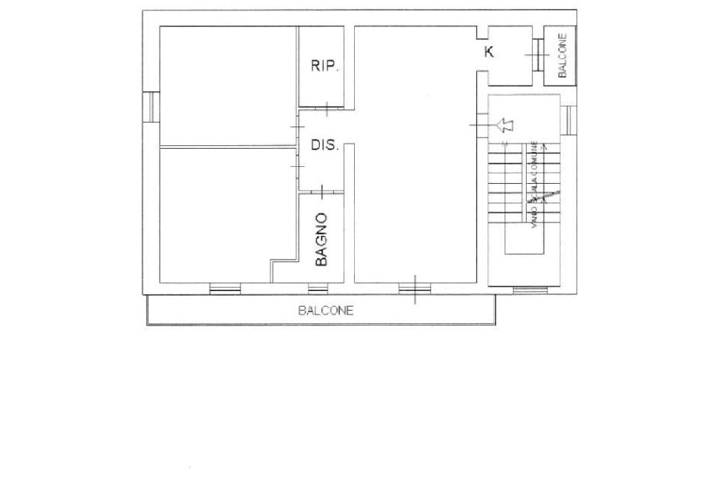
L’immobile si sviluppa interamente su un unico livello e ci accoglie con un grande soggiorno con camino e uscita sul balcone, collegato a un cucinotto funzionale con ulteriore piccolo balcone. Un disimpegno introduce la zona notte composta da due camere matrimoniali di generose dimensioni, un bagno finestrato e un comodo ripostiglio.

L’ampia metratura offre la possibilità di realizzare una terza camera, garantendo così flessibilità e adattabilità a diverse esigenze abitative. L’appartamento è termoautonomo, alimentato da pompa di calore esterna e ottimizzato dai recenti interventi, assicurando consumi ridotti ed elevato comfort abitativo.

Ideale come abitazione principale per coppie e famiglie che desiderano spazio, tranquillità ed efficienza energetica.

Contattaci subito per fissare una visita e scoprire da vicino tutte le potenzialità di questo appartamento.

Mostra tutto

Nelle vicinanze

Trasporto pubblico Trasporto pubblico
Trasporto pubblico
2,9 Km
Farmacia Farmacia
Farmacia
1,1 Km
Supermercati Supermercati
Superconti
2,8 Km
Negozi Negozi
Rossetti Sport
1,1 Km
La Pizzicheria
2,7 Km
Ristoranti Ristoranti
Pizza In Piazza
2,7 Km
La Valle
2,8 Km
Pescheria Contro Corrente
2,8 Km
Ristorante Tiresia
2,9 Km
Casa Tuscia
3,0 Km
Mostra tutto

Caratteristiche

Rif.:
60947221
Piano:
1 di 2 (Piano basso)
Balconi:
1
Camere da letto:
2
Arredamento:
Assente
Condizionamento:
Autonomo
Mostra tutto
Prezzo Prezzo
€ 105.000
Rata mutuo Rata mutuo
€ 495 / mese
Spese annue Spese annue
€ 0
Proponi il tuo prezzoProponi il tuo prezzo

Classe Energetica

Questo immobile è esente da classe energetica
Anno di costruzione:
1980
Riscaldamento:
Autonomo
Tipo impianto:
A radiatori
Tipo alimentazione:
Metano

Ti interessa visionare l'immobile?

Fissa un appuntamento  Fissa un appuntamento

Richiedi informazioni

Clicca su Leggi per aprire l'informativa
* Questi campi sono obbligatori

Calcola il tuo mutuo

Semplice e senza impegno
Anticipo

( % )
Mutuo

( % )

pochi semplici passi

inserisci i tuoi dati
Questionario completato
Grazie per aver richiesto un appuntamento senza impegno con un nostro Consulente del Credito e Assicurativo.

Hai inserito correttamente tutti i dati necessari e a breve riceverai una e-mail con un link da convalidare per inviare i tuoi dati.
Affiliato
Studio Monterosi Srl
P.zza Antonio Varisco, snc 01030 Monterosi (VT)

Il nostro staff


  • Severina Muzi
    Responsabile

  • Francesco Riposati
    Affiliato

  • Daniele Casamassa
    Affiliato

  • Stefano Castello
    Collaboratore

  • Lorenzo Lancioni
    Collaboratore

  • Giacomo Amadeo
    Collaboratore

  • Camilla Stìval
    Coordinatrice
P.zza Antonio Varisco, snc 01030 Monterosi (VT)
Zona: Monterosi-Nepi-Castel Sant'Elia
Mostra su mappa
Orari: lunedì - venerdì 9:00 - 13:00 e 15:30 - 19:00. Sabato orario continuato 9:00 - 17:00. Domenica Chiuso.
Affiliato
Studio Monterosi Srl
P.zza Antonio Varisco, snc 01030 Monterosi (VT)

2026 Tecnocasa Franchising S.p.A. - P. IVA 08365160152 - Via Monte Bianco 60/A 20089 Rozzano (MI). Ogni agenzia ha un proprio titolare ed è autonoma. Privacy policy | Policy utilizzo | Cookie policy