Quadrifamiliare in vendita

Monterosi, Via degli Oleandri
€ 250.000
5 locali 5 locali
200 Mq 200 Mq
3 bagni 3 bagni

Quadrifamiliare in vendita

Monterosi, Via degli Oleandri

Descrizione annuncio

Monterosi – Villa Quadrifamiliare Ristrutturata, Pronta da Abitare

In una zona tranquilla e ben servita proponiamo in vendita a Monterosi una splendida porzione di villa quadrifamiliare completamente ristrutturata, pronta per essere abitata e ideale per chi desidera comfort, luminosità e spazi ben organizzati.

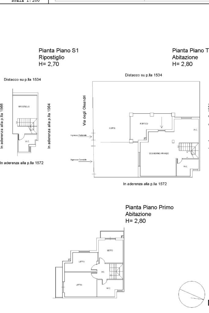
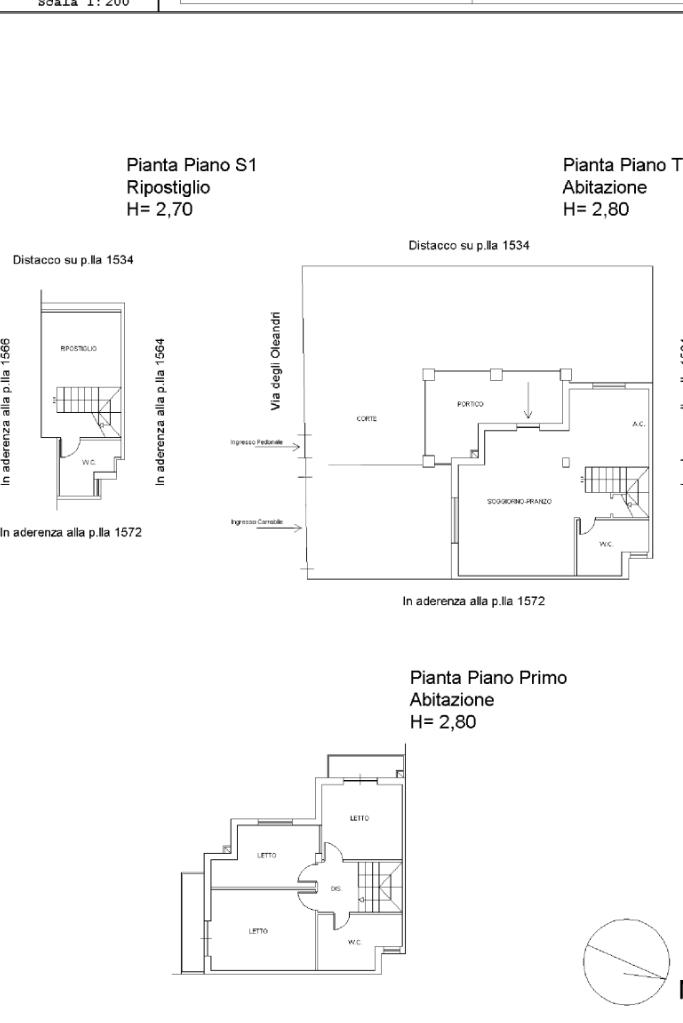
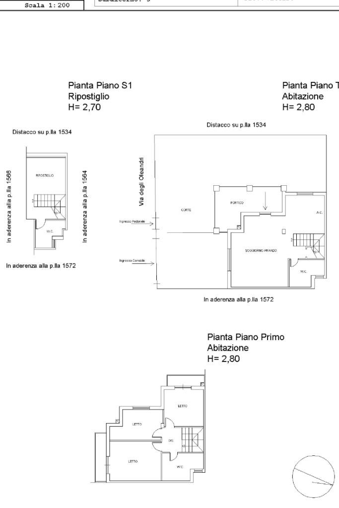
Entrando nell’abitazione veniamo accolti da una luminosa zona living composta da un ampio soggiorno con cucina a vista, un ambiente perfetto per vivere la quotidianità e condividere momenti con famiglia e amici, completato da un bagno con doccia. La proprietà è arricchita da un giardino privato curato e verde di circa 70 mq, uno spazio ideale per momenti di relax all’aperto, pranzi estivi o per chi ama vivere gli spazi esterni.

Salendo al primo piano troviamo la zona notte composta da tre camere da letto, di cui due dotate di balcone privato, che garantiscono luminosità e sfogo esterno, oltre a un bagno con vasca idromassaggio pensato per momenti di relax.

Al piano seminterrato si sviluppa una spaziosa taverna, un ambiente ideale per cene, feste e riunioni di famiglia, arricchita dalla presenza di un ulteriore bagno e di un pratico sgabuzzino che rende gli spazi ancora più funzionali.

Questa soluzione rappresenta la scelta perfetta per chi cerca una casa pronta da vivere in un contesto riservato ma allo stesso tempo vicino ai principali servizi.

Contattaci oggi stesso per maggiori informazioni o per prenotare una visita. Questa potrebbe essere la casa che stavi cercando!

Mostra tutto

Nelle vicinanze

Farmacia Farmacia
Farmacia Dr. Sergio Pesce
490 m
Supermercati Supermercati
Punto Simply
610 m
Negozi Negozi
Negozi
440 m
Arte del pane
500 m
Strong store
510 m
Ristoranti Ristoranti
Trattoria da Angelica
550 m
Why Not
710 m
Osteria Frontoni
850 m
Il Casale dei buoni sapori
2,3 Km
Mostra tutto

Caratteristiche

Rif.:
61199921
Piano:
Su più livelli
Posti auto:
2
Balconi:
2
Camere da letto:
3
Arredamento:
Assente
Mostra tutto
Prezzo Prezzo
€ 250.000
Rata mutuo Rata mutuo
€ 1.179 / mese
Spese annue Spese annue
€ 0
Proponi il tuo prezzoProponi il tuo prezzo

Classe Energetica

G
G
G
G
G
G
G
G
G
EP invernale del fabbricato:
EP estiva del fabbricato:
Anno di costruzione:
2011
Riscaldamento:
Autonomo
Tipo impianto:
A radiatori
Tipo alimentazione:
Metano

Ti interessa visionare l'immobile?

Fissa un appuntamento  Fissa un appuntamento

Richiedi informazioni

Clicca su Leggi per aprire l'informativa
* Questi campi sono obbligatori

Calcola il tuo mutuo

Semplice e senza impegno
Anticipo

( % )
Mutuo

( % )

pochi semplici passi

inserisci i tuoi dati
Questionario completato
Grazie per aver richiesto un appuntamento senza impegno con un nostro Consulente del Credito e Assicurativo.

Hai inserito correttamente tutti i dati necessari e a breve riceverai una e-mail con un link da convalidare per inviare i tuoi dati.
Affiliato
Studio Monterosi Srl
P.zza Antonio Varisco, snc 01030 Monterosi (VT)

Il nostro staff


  • Severina Muzi
    Responsabile

  • Francesco Riposati
    Affiliato

  • Daniele Casamassa
    Affiliato

  • Stefano Castello
    Collaboratore

  • Lorenzo Lancioni
    Collaboratore

  • Giacomo Amadeo
    Collaboratore

  • Camilla Stìval
    Coordinatrice
P.zza Antonio Varisco, snc 01030 Monterosi (VT)
Zona: Monterosi-Nepi-Castel Sant'Elia
Mostra su mappa
Orari: lunedì - venerdì 9:00 - 13:00 e 15:30 - 19:00. Sabato orario continuato 9:00 - 17:00. Domenica Chiuso.
Affiliato
Studio Monterosi Srl
P.zza Antonio Varisco, snc 01030 Monterosi (VT)

2026 Tecnocasa Franchising S.p.A. - P. IVA 08365160152 - Via Monte Bianco 60/A 20089 Rozzano (MI). Ogni agenzia ha un proprio titolare ed è autonoma. Privacy policy | Policy utilizzo | Cookie policy