Villa singola in vendita

Nepi, Via Delle Robinie
€ 259.000
12 locali 12 locali
300 Mq 300 Mq
4 bagni 4 bagni

Villa singola in vendita

Nepi, Via Delle Robinie

Descrizione annuncio

Villa singola con parco privato a Colle Farnese

Nel verde e nella tranquillità del contesto residenziale di Colle Farnese proponiamo in vendita una villa singola immersa in un parco privato di circa 2000 mq, ideale per chi cerca indipendenza, ampi spazi e un contatto diretto con la natura.

La proprietà si sviluppa su più livelli, ma la parte abitativa principale è comodamente distribuita su un unico piano. Al piano rialzato troviamo un ampio salone con camino in peperino che dialoga con la cucina in muratura, dalla quale si accede direttamente al giardino retrostante dove è presente un’area pavimentata perfetta per pranzi e cene all’aperto. Dal salone un corridoio conduce alla zona notte composta da due camere da letto, di cui una con bagno privato, oltre a un secondo bagno a servizio del piano.

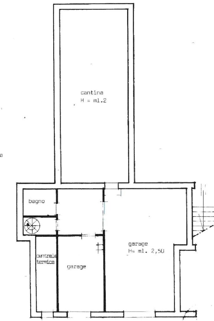
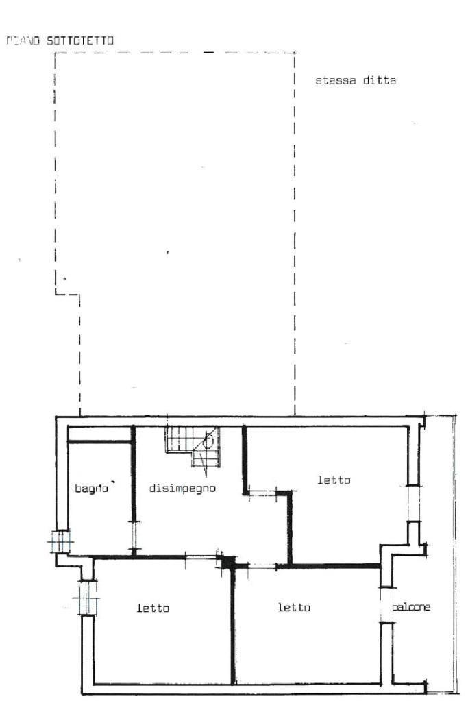
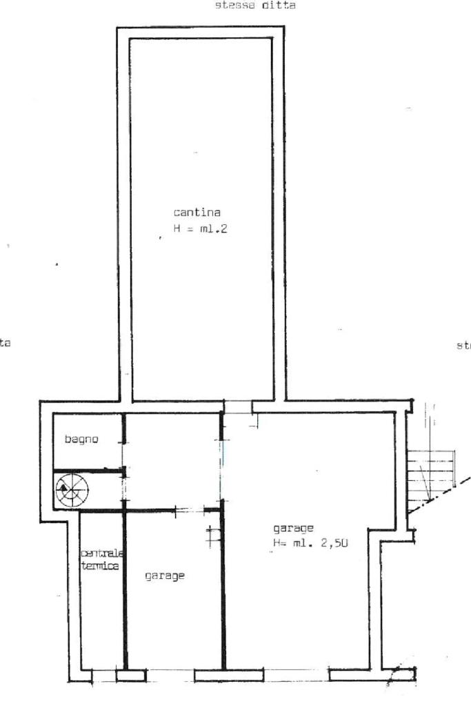
Al piano superiore si sviluppa una zona mansardata che ospita tre camere da letto e un bagno, uno spazio versatile ideale per famiglia, ospiti o studio. Il piano seminterrato è composto da un garage, una sala hobby con camino, una camera e un bagno ed è accessibile sia tramite una scala interna a chiocciola sia dall’esterno direttamente dal garage.

Il giardino che circonda la villa è in gran parte pianeggiante e offre numerose possibilità di personalizzazione, creando ambienti dedicati al relax, al tempo libero o alla vita all’aria aperta.

La villa si presenta in buono stato strutturale, mentre gli interni risultano leggermente datati, lasciando spazio a un intervento di ristrutturazione che permetta di valorizzare al massimo la proprietà e adattarla alle proprie esigenze. Completano la casa pannelli fotovoltaici con inverter, pozzo con boiler di accumulo, idrostufa a pellet collegata ai radiatori e condizionatori.

Grazie alla distribuzione funzionale degli spazi, all’indipendenza e al contesto riservato e verde, questa villa rappresenta una soluzione ideale sia come abitazione principale per famiglie sia come seconda casa.

Contattaci per ricevere maggiori informazioni o per fissare una visita e scoprire di persona il potenziale di questa proprietà unica.

Mostra tutto

Nelle vicinanze

Farmacia Farmacia
Farmacia Dr. Sergio Pesce
2,9 Km
Farmacia Pharmanepi
2,9 Km
Supermercati Supermercati
Supermercato Carrefour NEPI
2,3 Km
Simply Nepi
2,8 Km
Punto Simply
3,0 Km
Negozi Negozi
Lexess
2,2 Km
Negozi
2,8 Km
Arte del pane
2,9 Km
Strong store
2,9 Km
Bar Bar
Jasmine
1,3 Km
Ristoranti Ristoranti
Il Casale dei buoni sapori
570 m
Osteria Frontoni
1,7 Km
Trattoria da Angelica
2,8 Km
Mostra tutto

Caratteristiche

Rif.:
61170833
Piano:
Su più livelli
Box:
1
Posti auto:
4
Balconi:
2
Terrazzi:
1
Mostra tutto
Prezzo Prezzo
€ 259.000
Rata mutuo Rata mutuo
€ 1.202 / mese
Spese annue Spese annue
€ 750
Proponi il tuo prezzoProponi il tuo prezzo

Classe Energetica

F
F
F
F
F
F
F
F
F
EP globale non rinnovabile:
237.52 kW h/m² anno
EP globale rinnovabile:
9.12 kW h/m² anno
EP invernale del fabbricato:
EP estiva del fabbricato:
Anno di costruzione:
1974
Riscaldamento:
Autonomo
Tipo impianto:
A radiatori
Tipo alimentazione:
Aria

Ti interessa visionare l'immobile?

Fissa un appuntamento  Fissa un appuntamento

Richiedi informazioni

Clicca su Leggi per aprire l'informativa
* Questi campi sono obbligatori

Calcola il tuo mutuo

Semplice e senza impegno
Anticipo

( % )
Mutuo

( % )

pochi semplici passi

inserisci i tuoi dati
Questionario completato
Grazie per aver richiesto un appuntamento senza impegno con un nostro Consulente del Credito e Assicurativo.

Hai inserito correttamente tutti i dati necessari e a breve riceverai una e-mail con un link da convalidare per inviare i tuoi dati.
Affiliato
Studio Monterosi Srl
P.zza Antonio Varisco, snc 01030 Monterosi (VT)

Il nostro staff


  • Severina Muzi
    Responsabile

  • Francesco Riposati
    Affiliato

  • Daniele Casamassa
    Affiliato

  • Stefano Castello
    Collaboratore

  • Lorenzo Lancioni
    Collaboratore

  • Giacomo Amadeo
    Collaboratore

  • Camilla Stìval
    Coordinatrice
P.zza Antonio Varisco, snc 01030 Monterosi (VT)
Zona: Monterosi-Nepi-Castel Sant'Elia
Mostra su mappa
Orari: lunedì - venerdì 9:00 - 13:00 e 15:30 - 19:00. Sabato orario continuato 9:00 - 17:00. Domenica Chiuso.
Affiliato
Studio Monterosi Srl
P.zza Antonio Varisco, snc 01030 Monterosi (VT)

2026 Tecnocasa Franchising S.p.A. - P. IVA 08365160152 - Via Monte Bianco 60/A 20089 Rozzano (MI). Ogni agenzia ha un proprio titolare ed è autonoma. Privacy policy | Policy utilizzo | Cookie policy